Строительная конфигурация v23 (AEC) для КОМПАС-3D v23
Приложение: Жизнеобеспечение ОВ
Приложение: Жизнеобеспечение ВК
Приложение: Железобетонные конструкции КЖ
Приложение: Металлоконструкции КМ
Лучшее решение – 2д/3д проектирование с приложениями от компани и АСКОН. Часть 2.
Из года в год программные продукты в области проектирования становятся всё эффективнее и технологичнее. Современный инженер-проектировщик редко работает с кульманом или имеет под рукой толстую стопку технической литературы с закладками на нужных разделах, где можно найти формулы или ссылки на ГОСТ. Такая практика до сих пор встречается в некоторых проектных институтах, где работают специалисты с большим стажем, придерживающиеся традиционных методов и скептически относящиеся к внедрению новых технологий. С точки зрения классического проектирования и конструирования эти профессионалы доказали свою надёжность и компетентность. Однако у такого подхода есть существенный недостаток — низкая скорость выполнения задач. В условиях современного мира, где без высоких технологий не обойтись, это становится серьёзным ограничением. Даже в повседневной жизни смартфон стал неотъемлемой частью как личной, так и профессиональной деятельности человека.
В этой статье мы расскажем, как инженер-проектировщик может легко воспользоваться новыми технологиями и познакомим вас с актуальными и полезными приложениями от компании АСКОН, созданными на базе программного обеспечения КОМПАС-3Д (График).
АСКОН — российская компания, основанная в начале 1990-х годов, быстро завоевала репутацию одного из лидеров в области разработки программного обеспечения для проектирования и управления данными. С самого начала своего существования компания сосредоточила усилия на создании решений для различных отраслей, таких как машиностроение, строительство и энергетика. Вот уже более 35 лет разработчики компании стремятся воссоздать идеальный мир САПР, где специалист без углубленных знаний CAD-систем, может быстро и безболезненно начать пользоваться продуктами компании. На текущий день компания предоставляет:
- Большой сборник литературы, представленный в разных видах: web-версия, pdf-файл, справка внутри программы (Рис.1);
- овременный и понятный ленточный вид интерфейса, который можно легко настроить как по оформлению, так и по функциональным кнопкам (рис.2);
- Обучающие инструкции и материалы (Рис.3), а если этих данных будет недостаточно для решения ваших задач, тогда обязательно пишите нам – support@invts.ru и мы поможем их найти.
Это лишь одна часть источников информации, которой делится с нами компания АСКОН. Также существует большой набор видеороликов, вебинаров, методических пособий на видеохостингах: YouTube, RuTube, Дзен.
Актуальная версия ПО на момент выхода статьи: v23.

Рис. 1 – Основная литература программы Компас-3Д (Компас-График)

Рис. 2 – Ленточный вид интерфейса программы

Рис. 3 – Полезные источники информации для самостоятельного изучения
На момент выхода этой статьи компания АСКОН предлагает 156 программных решений, направленных на повышение эффективности проектирования. В рамках данной публикации мы расскажем о нескольких из них, которые построены на платформах КОМПАС-3D (График) и представляют собой отдельные приложения этого программного продукта.
Строительная конфигурация — это набор из 11 самостоятельных приложений, объединённых общим функционалом. Они включают в себя профессиональные инструменты для проектирования, базы данных элементов, инструменты расчёта систем и генерации выходной проектной документации. Подробнее рассмотрим далее.
Приложение для проектирования процессов по разделам АК/ТХ объектов промышленного назначения, технологических установок и технологических производств. Реализует требования ГОСТ 21.401-88 «СПДС. Технология производства. Основные требования к рабочим чертежам» и ГОСТ 21.606-95 «СПДС. Правила выполнения рабочей документации тепломеханических решений котельных».

Рис. 4 – Интерфейс приложения ТХ с набором панелей инструментов

Рис. 5 – Узел соединения технологического подключения насосов
Раздел «Технологические решения» (ТХ) позволяет выполнять следующее:
- Размещение оборудования на планах и разрезах зданий и сооружений. В процессе проектирования доступны каталоги оборудования от различных производителей (например, Ekoplastik, ИКАПЛАСТ, ЗАО «Катайский насосный завод» и др.). Каждый элемент каталога содержит технические характеристики и параметрические данные геометрических свойств. Для создания пользовательских объектов предусмотрен специальный инструмент, а также возможность обмена каталогами с коллегами.
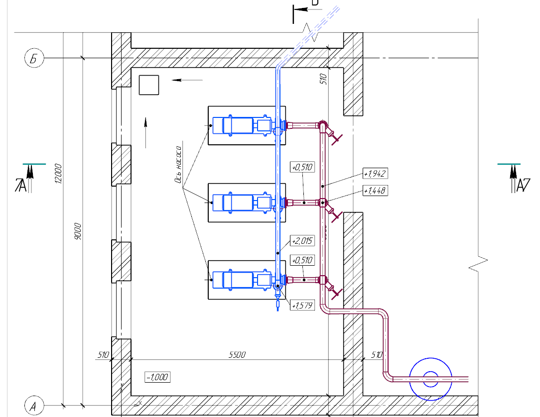
- Проектирование технологических обвязок с установкой арматуры (врезка в трубу). Для каждого типа оборудования разрабатывается технологическая обвязка, включающая размещение и интеграцию элементов на плане с отображением их взаимодействия с другими компонентами. На основе готового технологического объекта специалист создаёт разрезы, схемы и трёхмерную модель (Рис.5).
- Построение аксонометрических и изометрических схем, а также разрезов. Схемы позволяют наглядно представить взаимосвязи и пропорции между компонентами оборудования, точно визуализировать оборудование без искажений и упростить восприятие геометрии и размеров элементов. Пользователь может выбрать количество систем, участвующих в построении. Для удобства реализованы два типа разрезов: временный и постоянный — для отображения внутренней структуры и конфигурации элементов на плане (Рис.6).


Рис. 6 – Аксонометрический вид с УГО и высотными отметками. Разрез
- Создание 3Д-модели. Приложение использует технологию проектирования MinD (Model in Drawing), которая автоматически преобразует 2D-чертёж в трёхмерную модель. Модель формируется непосредственно в чертеже, и изменения могут вноситься на любом этапе проектирования. Обеспечена интеграция между строительными приложениями и каталогами, что позволяет организовать совместную работу смежных специалистов над проектом (Рис.5).
- Интеграция с расчётными системами. Модель трубопровода может быть сохранена в открытом формате программного комплекса СТАРТ НТП «Трубопровод» для дальнейшего расчёта и анализа.
- Формирование выходной документации. Приложение автоматически создаёт спецификации и ведомости, которые можно разместить на листе чертежа или в отдельном документе. При внесении изменений спецификации обновляются автоматически (Рис.7). Специальный менеджер позволяет создавать собственные формы спецификаций на основе готовых. Табличные данные поддерживают экспорт в формат *xlsx.

Рис. 7 – Оформление листа спецификации
- Маркировка. Для оформления чертежей доступны инструменты: расстановка марок и позиций, простановка высотных отметок, аннотирование технологических линий, простановка размеров и строительных длин (Рис.8).

Рис. 8 – Оформление чертежа средствами приложения ТХ
Приложение разработано для автоматизации подготовки проектной документации по разделам «Отопление» и «Вентиляция» и соответствует требованиям ГОСТ 21.602-2016 «СПДС. Правила выполнения рабочей документации отопления, вентиляции и кондиционирования».

Рис. 9 – Интерфейс приложения ОВ с набором панелей инструментов
Инструменты приложения функционально поделены на две части — отопление и вентиляция, а также общую часть для работы с сегментами участков трубопроводов и воздуховодов, формирования аксонометрических схем и разрезов, спецификаций.

Рис. 10 – Размещение оборудования на плане, 3Д вид модели
Функционал приложения в разделе «Отопление» позволяет на плане автоматически проложить трубопроводы систем отопления с учетом отводов, подключить оборудование из широкого каталога, установить запорную, предохранительную и регулирующую арматуру, а также добавить другие элементы трубопроводов.
В части «Вентиляция» приложение обеспечивает возможность создания круглых и прямоугольных воздуховодов систем вентиляции, подключения оборудования из каталога, а также размещения таких деталей, как воздухораспределители, гибкие вставки, зонты, воздушные заслонки, дефлекторы, огнезадерживающие клапаны, теплообменники, фильтры и шумоглушители.

Рис. 11 – Аксонометрическая схема системы вентиляции
Оборудование и детали в каталогах представлены производителями: TECOFI, KORF, АРКТОС, REMAK, POLAR BEAR, KANALFLAKT, GRUNDFOS, DANFOS, OSTBERG, МОВЕН, EXACT, CUBBA и другими. Также легко получить собственные элементы, меняя параметры имеющихся элементов из каталога, и быстро создать пользовательские элементы при помощи специального редактора.

Рис. 12 – Разрез для участка системы
Приложение соответствует требованиям ГОСТ 21.601-2011 «СПДС. Правила выполнения рабочей документации внутренних систем водоснабжения и канализации» и используется для автоматизации строительного проектирования при создании комплектов рабочих чертежей по разделам «Водоснабжение» и «Канализация».

Рис. 13 – Интерфейс приложения ВК с набором панелей инструментов
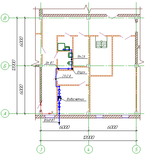
Инструменты приложения позволяют выполнить построение трубопроводов систем водоснабжения и канализации с автоматической вставкой отводов, разместить оборудование и элементы трубопровода (запорную, предохранительную и регулирующую арматуру, детали трубопроводов, опорные конструкции).

Рис. 14 – Система водоснабжения с размещением оборудования
Приложение предоставляет возможность передавать построенную модель коммуникаций в программный комплекс СТАРТ для последующего выполнения расчетов и анализа (Рис.15).

Рис. 15 – Система водоснабжения переданная в расчетную программу СТАРТ
В каталогах оборудования и деталей представлены элементы от множества производителей, а также компоненты санитарно-технических систем, соответствующие требованиям ГОСТ 21.205-2016, ГОСТ 21.206-2012 и ГОСТ 2.785-70 (Рис.16). Каталог можно расширять за счёт создания пользовательских элементов и обмена базами данных с коллегами.

Рис. 16 – База УГО элементов водоснабжения

Рис. 17 – Аксонометрическая схема сети водоснабжения

Рис. 18 – Аксонометрическая схема сети водоотведения
Для объектов приложения Жизнеобеспечение: ОВ и ВК спецификации формируются автоматически. Если оказалось, что в спецификацию необходимо добавить доп. оборудование или материалы, сделать это можно в редакторе спецификации.
Приложение предназначено для автоматизации выпуска проектной документации комплектов АС и АР в среде КОМПАС-3D.

Рис. 19 – Интерфейс приложения Архитектура с набором панелей инструментов
С его помощью инженер-проектировщик может создавать планы и разрезы зданий и сооружений различного функционального назначения, используя широкий набор инструментов для построения архитектурных элементов: стен, проёмов, дверей, окон, колонн, лестниц и других конструктивных элементов.

Рис. 20 – План здания с учетом типа стен и перегородок, проемов, дверей и колонн
Приложение позволяет оперативно формировать строительную подоснову при проектировании внутренних инженерных систем и сетей. Оно открывает широкие возможности для решения задач разного уровня сложности — от детального проектирования отдельного здания до планирования целого микрорайона.

Рис. 21 – Создание 3Д модели на базе 2Д чертежа
В разделе «Архитектура» приложение АС/АР предоставляет проектировщику возможность работать с привычными объектами — стенами, колоннами, проёмами, окнами, дверьми, лестницами и другими — а также использовать специализированные инструменты, такие как менеджер помещений, групповое редактирование свойств и создание спецификаций. В состав приложения входит обширный каталог архитектурно-строительных элементов, что значительно ускоряет и упрощает процесс проектирования (рис.21).



Рис. 22 – Наборы базовых элементов по категориям
Работа в связке с приложением СПДС-Помощник обеспечивает быстрое и удобное оформление поэтажных планов, что значительно сокращает сроки подготовки проектной документации (Рис.23).

Рис. 23 – Способ вызова приложения СПДС-Помощник


Рис. 24 – Экспликация помещений по форме 2 ГОСТ 21.501-2018 на листах чертежа
В программе получение спецификаций строительных объектов осуществляется по форме 7 ГОСТ Р 21.1101-2013.

Рис. 25 – Спецификация элементов заполнения проёмов

Рис. 26 – Спецификации к планам и схемам расположения
А также можно получить ведомость расхода материалов по всему проекту или отдельно по этажу.

Рис. 27 – Ведомость материалов
Отмечаем, что КОМПАС-3D Архитектура (АС/АР) — это мощное решение для проектирования зданий и сооружений, ориентированное на архитекторов и проектировщиков. Оно объединяет в себе функции 2D/3D-моделирования, автоматизации чертежей и интеграции с другими инженерными системами.
Приложение предназначено для автоматизации процесса проектирования и выпуска проектной документации марки КЖ/КЖИ. Содержит инструменты для проектирования конструкций из сборного и монолитного железобетона.


Рис. 28 – Набор инструментов приложения КЖ
Приложение соответствует требованиям справочного пособия к СНиП 2.03.01-84 «Проектирование железобетонных сборно-монолитных конструкций» и ГОСТ Р 21.1101-2009 «СПДС. Основные требования к проектной и рабочей документации», обеспечивая соответствие проектной документации действующим нормам.

Рис. 29 – Инструмент: опалубка. Создание арматурной сетки
В процессе проектирования сборных железобетонных конструкций инженеру доступны инструменты для подбора и раскладки плит перекрытия с учетом их опирания на стены. Приложение поддерживает автоматическую раскладку железобетонных элементов из обширного каталога, выбор и компоновку групп перемычек, а также автоматическое создание спецификаций и ведомостей перемычек.

Рис. 30 – Создание разрезов монолитного перекрытия

Рис. 31 – Армирование проёмов монолитных конструкций
Для построения 3D-моделей используется технология MinD (Model in Drawing), которая позволяет автоматически преобразовывать 2D-чертежи в трехмерные объекты. Модель формируется непосредственно в чертеже, и изменения могут вноситься на любом этапе проектирования, обеспечивая гибкость и точность.

Рис. 32 – Раскладка плит перекрытий и покрытый
При работе с монолитным железобетоном приложение позволяет создавать схемы армирования конструкций, проектировать сварные арматурные сетки и каркасы, раскладывать закладные детали и отдельные арматурные стержни, армировать проемы в монолитных конструкциях, формировать опалубочные чертежи, а также автоматически генерировать спецификации и другие необходимые документы.

Рис. 33 – Вычисление площади армирования в % (процентах)
Обеспечена интеграция между строительными приложениями и каталогами, что позволяет организовать совместную работу над проектом смежных специалистов, обмениваться данными и синхронизировать информацию.

Рис. 34 – Формирование ведомости перемычек

Рис. 35 – Формирование ведомости перемычек. Спецификация

Рис. 36 – Рабочая документация. Оформление чертежа
Приложение предназначено для автоматизации процесса проектирования и выпуска проектной документации марки КМ. Важной особенностью является реализация в приложении требований ГОСТ 21.502-2007 «Система проектной документации для строительства. Правила выполнения проектной и рабочей документации металлических конструкций».

Рис. 37 – Интерфейс и панель инструментов приложения КМ
Приложение позволяет начать проектирование металлоконструкций с построения схемы в плане, используя специализированные элементы — колонны, балки, фермы и связи. Пользователь может в любой момент переключаться с плана на разрез и устанавливать необходимые элементы в нужной плоскости. Все созданные в плане металлоконструкции автоматически формируются в 3D-модель. Для задания параметров уровней и этажей рекомендуется использовать «Менеджер объектов строительства».


Рис. 38 – Создание колонн из перечня сортамента
Приложение поддерживает автоматическое создание стандартных видов соединений металлоконструкций, что упрощает и ускоряет процесс проектирования. Созданные узлы легко редактировать — все внесённые изменения отражаются в соответствующих проекциях, конструкциях и учитываются в спецификациях.

Рис. 39 – Размещение элементов КМ на плане
Пользователю доступна обширная база типовых металлоконструкций и сортаментов металлопроката, а также изображений узлов и соединений, взятых из каталогов строительных элементов.
Для выполнения прочностного анализа металлического каркаса модель, созданная в приложении «Металлоконструкции: КМ», может быть передана в расчетную систему SCAD.

Рис. 40 – Создание 3Д-вида на основе 2Д чертежа
Полученная 3D-модель металлического каркаса может быть использована на следующей стадии проектирования — в приложении КМД, где можно проверить коллизии элементов, выполнить разрезы и сечения, доработать конструкции и создать деталировочные чертежи на основе этой модели.
Спецификации металлопроката и отправочных элементов формируются автоматически в соответствии с требованиями ГОСТ, на основе отчетных данных.




Рис. 41 – Выходная документация. Спецификации изделий и материалов
Лучшее решение – 2д/3д проектирование с приложениями от компани и АСКОН. Часть 2.
Вернуться назад
Ваша заявка успешно отправлена!
Мы свяжемся с Вами в ближайшее время и ответим на все интересующие Вас вопросы
Перейти на главную